氣體滅火系統配件
聯系我們
CONTACT US
智淼消防氣體滅火施工安裝公司
聯系人:何經理
服務熱線:4006-598-119
郵箱:1334605518@qq.com
傳真:15262554119
地址:蘇州常熟市黃河路275號
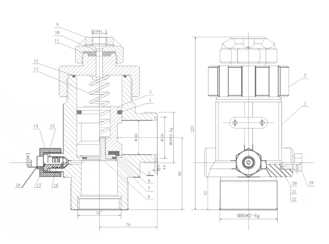
柜式七氟丙烷容器閥
商品類別:氣體滅火系統配件
點擊次數:11643
上架時間:2025年02月10日
全國服務熱線: 4006-598-119
產品描述
柜式七氟丙烷容器閥

技術參數:

容器閥的規格型號:QRF32/4.2-XL、QRF50/4.2-XL 、QRF50/4.2-XL
容器閥結構圖紙:


上一篇:氣體滅火集流管
本文標簽: 柜式七氟丙烷容器閥
最新產品
相關新聞
- 氣體滅火系統工程消防驗收現場評定技術指南2025-12-19
- 海灣七氟丙烷氣體滅火鋼瓶的安裝注意事項2025-12-19
- 氣體滅火控制盤的作用2025-12-16
- 圖書館氣體滅火的施工重點2025-12-16
- 氣體滅火控制盤套什么定額2025-12-10
- 自動滅火系統控制方式匯總2025-12-10
- 固定式氣體滅火系統2025-12-03
- 柜式氣體滅火裝置的使用范圍2025-12-03
- 氣體滅火系統管道的表面涂層習慣是什么?2025-12-01
- 氣體滅火系統功能操作測試方法2025-12-01



服務熱線:4006-598-119 18751140119
地址:蘇州常熟市黃河路275號
客服 